受入可能
新大宮バイパス・鴨川に近い、静かでのどかな環境
新大宮バイパスを挟んだ鴨川沿いには「三橋総合公園」があり、広い園内には緑の木々や季節の花々が植えられ、住民の憩いの場となっています。
そんな静かでのどかな環境が毎日を楽しくしてくれます。
徒歩1分の場所に「大倭神社」があり、初詣・お花見・夏祭り見学等のレクリエーションも楽しんでいただいております。
日中は看護師が常駐、また24時間介護スタッフによる見守りサービスはもちろん、食事や入浴、排せつ等の日常生活支援や機能訓練等も提供できる施設です。
都道府県から指定を受けておりますので、安心していただけます。
また、ご入居者さまが自由に外出したり、ご家族を招いたり、家事(自炊・洗濯など)ができるなど、これまでの生活に近い自由な毎日を過ごせる住居です。
緊急の際にはスタッフを呼び出せるコールボタンが設置されていますので、プライベートを守りながら、安心も両立できる生活ができます。
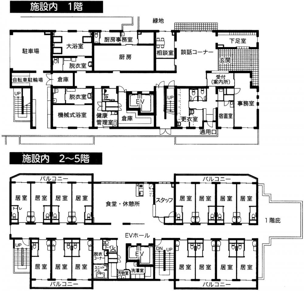
個別に入浴タイムが楽しめる浴室や「機械浴室」、好きな時間に自由に自炊ができるオープンキッチンも兼ね揃えています。
| 所在地 | 〒331-0052
埼玉県さいたま市西区三橋6-322-1 |
|---|---|
| 連絡先 | TEL:048-623-6600
FAX:048-623-6605 |
| 施設種別 | 特定入居者生活介護
サービス付き高齢者向け住宅 |
| 入居条件 | 60歳以上で、自立・要支援1~2・要介護1~5の方 |
| 居室面積 | 18.0m²(全室個室) |
| 敷地面積・
延床面積 |
1156m²・2458.3m² |
| 構造・規模 | 鉄筋コンクリート造5階建 |
| 土地建物の
権利形態 |
貸借 |
| 居住契約の
権利形態 |
賃貸借形式 |
| 定員 | 60名 |
| 居室設備 | トイレ・洗面・クローゼット・収納・エアコン・介護用電動ベッド(寝具付)・TVジャック・ナースコール・整理タンス・カーテン |
| 共用設備 | 浴室、特別浴室、食堂・居間、台所、洗濯室、相談室、談話室、医務室、エレベーター、フロント他 |
| 駐車場(来客用) | 5台 |
| サービス提供地域 | お問い合わせください。 |
| 事業主体 | メディカル・ケア・プランニング株式会社 |
最寄駅・交通手段
JR川越線「西大宮」駅から1.4km
JR埼京線「日進駅」から2.3km
ニューシャトル「鉄道博物館」駅から2.4km
JR高崎線 大宮駅からバスで20分 降車後、徒歩8分
協力医療機関
医療法人社団好生会 こまくさ診療所
医療法人三慶会 指扇病院
特定医療法人明浩会 西大宮病院
医療法人社団幸望会 澤田歯科医院
ご利用料金 (ハーモニーライフ大宮)
施設利用料(月額・食費30日分)
| 敷金(入居時のみ) | 225,000円 |
|---|---|
| 居室使用料 | 75,000円 |
| 食材費 | 63,000円 |
| 水道光熱費 | 25,000円 |
| 共益費 | 32,400円 |
介護保険自己負担・その他
| 介護保険
負担1割の場合(30日分) |
要支援1 : 5,863円
要支援2 : 10,028円
要介護1 : 17,365円
要介護2 : 19,512円
要介護3 : 21,755円
要介護4 : 23,837円
要介護5 : 26,048円 |
|---|---|
| その他 | 医療費・理美容代・おむつ代・レクリエーション費・個人の嗜好品購入等は実費負担となります。
生活保護受給者のご入居につきましては、関係機関との協議の上でご利用できます。 |
| 加算費用 | 施設の体制やご利用者さまの状態により介護保険上の加算があります。 費用の内訳詳細については施設までお気軽にお問い合わせください。 |

