受入可能
24時間365日対応の切れ目のないサービス
つどい「桜木」は、住み慣れた自宅で家族と共に暮らしたいでも在宅看護の負担は大きい。そんなご家庭の状況を少しでも手助けするために24時間365日対応の(施設介護のような)切れ目のないサービスを提供します。
| 所在地 | 〒264-0028
千葉県千葉市若葉区桜木8-13-11 |
|---|---|
| 連絡先 | TEL:043-235-2772
FAX:043-235-2773 |
| 施設種別 | 小規模多機能型居宅介護 |
| ご利用条件 | 千葉市にお住いで要支援・要介護の認定を受けた方 |
| 居室面積 | 12.82m²~13.06m²(全室個室) |
| 敷地面積・ 延床面積 |
- |
| 構造・規模 | 軽量鉄骨2階建
グルーホームつどい「福井家」に併設 |
| 土地建物の
権利形態 |
貸借 |
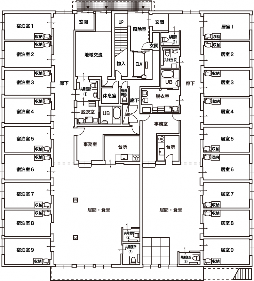
| 定員 | 登録29名(通い:18名・宿泊:9名) |
| 居室設備 | 宿泊室 9室(全個室) 洗面・収納・エアコン・介護用電動ベッド(寝具付)・TVジャック・ナースコール・整理タンス・カーテン |
| 共用設備 | リビングダイニング、地域交流室、台所、浴室、共用トイレ、他 |
| 駐車場(来客用) | 2台 |
| サービス提供地域 | 千葉市 |
| 事業主体 | メディカル・ケア・プランニング株式会社 |
最寄駅・交通手段
タウンライナー2号線「桜木」駅徒歩6分(約500m)
協力医療機関
医療法人社団 圭恵会 すずらんクリニック
医療法人社団 千歯会 おゆみ野総合歯科クリニック
医療法人社団 貞栄会 千葉在宅診療クリニック
ご利用料金
介護保険自己負担・その他
| 介護保険
負担1割の場合(30日) |
要支援1: 3,737円 要支援2: 7,551円 要介護1:11,326円 要介護2:16,646円 要介護3:24,215円 要介護4:26,726円 要介護5:29,468円 |
|---|---|
| その他 | 宿泊の際の居室利用料:2,800円(1宿泊) 食費:朝食 400円 昼食 750円 夕食 650円 医療費・理美容代・おむつ代・レクレーション費・個人の嗜好品購入等は実費負担となります。 生活保護受給者のご利用につきましては、関係機関との協議の上でご利用できます。 |
| 加算費用 | 施設の体制やご利用者様の状態により、介護保険上の加算があります。 |
| 費用の内訳・詳細については施設までお気軽にお問い合わせください。 |

